BuySellBlogBrowse Listings

471 West 140th StreetNew York, NY 10031

For Sale

$3,400,000

Smart Buyer Rebate $42,500

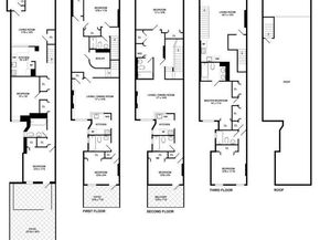
4 Unit Townhouse in historic Hamilton Heights is one of a row of ornate townhouses on this quiet residential street just opposite the north end of the beautiful Henry B Post designed CCNY campus. The 3888 square foot building is 18' Wide x 72' long with over 1400 square feet of additional FAR available to add on and sits on a 100' deep lot. The building is distinguished by its front projecting curved bays that help add space and light to the south facing front rooms.

 The four apartments all currently rented are as follows:
Unit 1 is a 3 bedroom/ 2 bath duplex with a two level private patio that is floor through on the lower level; Unit 2 is a 1 bedroom/ 1 bath rear facing apartment with its own rear facing balcony; Unit 3 is a 2 bedroom/ 2 bath floor through apartment with its own rear facing balcony; Unit 4 is a 2 bedroom/ 2 bath floor through apartment with private roof access that has recently been decked. All of the apartments feature hardwood floors, large bedrooms, newly installed central air conditioning, updated kitchens with stainless steel appliances, and stone countertops, modern renovated bathrooms, washer/ dryers, and generous closet space and all have outdoor space. Extra storage has been built into many of the rooms above the closets taking advantage of the high ceilings on the upper floors.

A new Mini-split air conditioner heating system has been installed in each of the apartments with all new electrical wiring, copper pipes and compressors for each of the units.  In addition, recent upgrades include a new bathroom vanity and vanity and a new microwave in apartment 1; new ceiling fans in apartment 2; new stove and dishwasher in apartment 3; and a bathroom vanity and sink in Apartment 4.

The house is across the street from CCNY and an easy commute to the main Columbia Campus and its new graduate center campus just west of Broadway at 125th Street. Commuting elsewhere is easy with the 145th Street A/B/C/D and the 1 train at 137th Street and bus lines on Amsterdam Avenue, Broadway and 145th Street. St. Nicholas Park and Hamilton Grange are just a block to the east and Riverbank State Park with its athletic fields and spectacular views of the Hudson is just a few blocks west.

Listed by Michael A Hamberger

·

Corcoran Group

·

(551) 206-8594

Listed by Fern S Hamberger

·

Corcoran Group

Last updated November 02, 2025

·

Source: REBNY #RLS20051760

Listing Facts

  • TypeMulti-family
  • NeighborhoodHamilton Heights
  • Bedrooms8
  • Bathrooms7
  • Days on Prevu50
  • Taxes$16,788/year

Amenities

  • Private Outdoor Space

Location

Mortgage Calculator

Listing History

10/26/2025
Status changed to Active
$3,400,000
10/25/2025
Status changed to Removed from Feed
$3,400,000
09/30/2025
Listed by Corcoran Group
$3,400,000

Estimated Closing Costs

Total
$128,160
Attorney Fees
$4,000
NYC Mansion Tax
$51,000
Title Insurance
$15,300
Bank Attorney
$1,500
Mortgage Recording Tax
$52,360
Other Closing Costs
$4,000

Estimated closing costs are based on the list price of $3,400,000 and a 20% downpayment. These estimates are for indicative purposes only. Actual closing costs may vary for each transaction. See the Closing Costs Calculator for calculations specific to your situation.

Property Details for 471 West 140th Street

Association

Amenities

  • Pets Allowed: Building Yes, No

Exterior

Construction

  • Number Of Units Total: 4
  • Stories Total: 4
  • Structure Type: Townhouse
  • Year Built: 1920
  • Entry Level: 1

Measurements

  • Building Area Total: 1,296
  • Building Area Units: SquareFeet
  • Lot Size Area: 1,800
  • Lot Size Dimensions: 100
  • Lot Size Units: SquareFeet

Financial

Taxes

  • Parcel Number: 2057-0032
  • Tax Annual Amount: $16,788.00

Interior

Features

  • Appliances: Washer Dryer Allowed
  • Interior Features: Smoke Free

Measurements

  • Living Area Units: SquareFeet

Rooms

  • Bathrooms Full: 7
  • Bathrooms Total Integer: 7
  • Bedrooms Total: 8
  • Rooms Total: 16

Other

Location

  • City Region: Manhattan
  • Subdivision Name: Hamilton Heights
  • Tax Block: 02057
  • Tax Lot: 0032

Utilities

Equipment

  • Cooling: Central Air
  • Has Cooling: Yes
  • Laundry Features: Washer Hookup, In Unit

Based on information from Real Estate Board of New York and/or other sources. This information is not verified for authenticity or accuracy and is not guaranteed and may not reflect all real estate activity in the market. ©2025 The Real Estate Board of New York, Inc., All rights reserved.

Full MLS Disclaimers

Rebate estimate is indicative only and based on listing price and estimated buyer's agent commission paid by owner, if applicable. Final rebates are subject to Terms of Use and may vary due to final negotiated transaction terms.