BuySellBlogBrowse Listings

4530 Merrick RoadMassapequa, NY 11758

For Sale

$2,050,000

Smart Buyer Rebate $20,500

Biltmore Shores | Waterfront New Construction Opportunity | Being Sold As-Is / Partially Completed
Discover a rare and expansive .55 acre waterfront offering in the desirable Biltmore Shores community. Located at 4530 Merrick Rd on the Grand Lagoon, this Sprawling Ranch boasts approximately 3500SF is custom-designed, with a 14.1’ elevation and FEMA Compliant. It presents a unique opportunity for a buyer to complete construction to their own specifications.
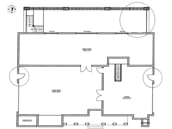
The current build features a town approved, planned layout including: 9-foot ceiling height, hi-hats, 200-amp electric service, four bedrooms, three full bathrooms, an 18'x14' eat-in kitchen open to a 15'x12' breakfast room with 12' sliders to a 72'x14' covered rear deck, a 20'x27' great room, 14'x14' dining room, and a 14'x14' den/study. The primary suite layout provides for an 17’8”x21' bedroom with a 14'x10' luxury bath, three walk-in closets, with private deck access to maximize waterfront views. The existing three bedrooms offer six foot closet space and are 16’x12’, 13’8”x14’8”, and 14’x12’2” in size. See attached floor plan and other attachments.
The full second level—approximately 1600sf offers significant future expansion potential, suitable for recreation, studio, office, or multigenerational living space.
The lower level at approximately 3500SF includes a 2-car garage with an extended crawl-space workshop designed for 6-8+ additional vehicles, potentially indoor-outdoor dining area with an additional 72x14 covered patio all leading out to the 140' bulkhead and a 26'x54' boathouse that brings the total bulkhead to 238’. All over-looking Massapequa Lake and the Grand Lagoon. The lagoon features approximately 20' depth at center with direct boating access to the Grand Canal and the Great South Bay, placing Fire Island and Robert Moses just minutes away by water.
IMPORTANT:
This property is being sold in as-is, partially constructed condition. The Buyer is responsible for all costs to complete construction. Plans, permits, surveys, and existing materials on-site will be included in the sale where applicable.
Live the sought-after Biltmore lifestyle, with membership eligibility to the private Biltmore Beach Club (pool, marina, courts, seasonal events), proximity to the Massapequa Preserve, Massapequa School District, Local dining favorites, and Easy commuter access to NYC and the Hamptons.
A truly rare and customizable waterfront estate opportunity!

Listed by Elaine Patterson SRES

·

Signature Premier Properties

·

516-799-7100

Listed by Daniel Patterson

·

Signature Premier Properties

Last updated November 18, 2025

·

Source: OneKey #934657

Listing Facts

  • TypeSingle-family
  • NeighborhoodMassapequa
  • Bedrooms4
  • Bathrooms3
  • Days on Prevu8
  • Taxes$19,554.98/year
  • Size3,485 sqft
  • Price per sqft$588

Amenities

  • Private Outdoor Space
  • Parking

Location

Mortgage Calculator

Listing History

11/11/2025
Listed by Signature Premier Properties
$2,050,000

Property Details for 4530 Merrick Road

Exterior

Construction

  • Property Condition: New Construction
  • Window Features: Double Pane Windows, ENERGY STAR Qualified Windows, New Windows
  • Year Built: 2025
  • Architectural Style: Raised Ranch, Ranch
  • Construction Materials: Frame, Stone, Vinyl Siding
  • Exterior Features: Lighting

Features

  • Patio And Porch Features: Covered, Porch
  • Road Frontage Type: Municipal
  • View: Panoramic, Water
  • Waterfront Features: Bulkhead, Canal Access, Canal Front, Water Access, Waterfront
  • Waterfront: Yes

Measurements

  • Building Area Total: 3,485
  • Building Area Units: Square Feet
  • Frontage Length: 140
  • Frontage Type: Municipal
  • Lot Features: Back Yard, Cleared, Front Yard, Level, Near Golf Course, Near Public Transit, Near School, Near Shops, Waterfront
  • Lot Size Acres: 0.54
  • Lot Size Dimensions: 140,170
  • Lot Size Square Feet: 23,801

Financial

Taxes

  • Parcel Number: 2489-65-096-00-0722-0
  • Tax Annual Amount: $19,554.98
  • Tax Assessed Value: $995.00
  • Tax Year: 2024

Interior

Features

  • Fireplace: Yes
  • Interior Features: First Floor Bedroom, First Floor Full Bath, Entrance Foyer, High Ceilings, Open Floorplan, Primary Bathroom, Recessed Lighting, Storage, Walk-In Closet(s), Washer/Dryer Hookup

Measurements

  • Living Area: 3,485
  • Living Area Source: Public Records

Rooms

  • Bathrooms Full: 2
  • Bathrooms Half: 1
  • Bathrooms Total Integer: 3
  • Bedrooms Total: 4
  • Rooms Total: 8

Parking

Parking

  • Garage Spaces: 4
  • Garage: Yes
  • Parking Features: Attached, Driveway, Garage
  • Parking Total: 8

Schools

Elementary School

  • Elementary School: Fairfield Elementary School
  • Elementary School District: Massapequa

High School

  • High School: Massapequa High School
  • High School District: Massapequa

Middle or Junior School

  • Middle Or Junior School: Berner Middle School
  • Middle Or Junior School District: Massapequa

Utilities

Equipment

  • Heating: Natural Gas
  • Sewer: Public Sewer
  • Utilities: Electricity Available, Electricity Connected
  • Water Source: Public

The data relating to real estate for sale on this website comes in part from the IDX Program of OneKey™ MLS. The source of the displayed data is either the property owner or public record provided by non-governmental third parties. It is believed to be reliable but not guaranteed. This information is provided exclusively for consumers’ personal, non-commercial use. Information Copyright 2025, OneKey™ MLS. All Rights Reserved.

Full MLS Disclaimers

Rebate estimate is indicative only and based on listing price and estimated buyer's agent commission paid by owner, if applicable. Final rebates are subject to Terms of Use and may vary due to final negotiated transaction terms.