BuySellBlogBrowse Listings

32 Marys WayStoughton, MA 02072

For Sale

$799,000

Smart Buyer Rebate $3,480

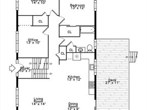
Welcome to this spacious lofted, split level home on beautiful grounds situated on a serene cul-de-sac only a mile from the commuter rail. This home offers three levels of living space, large deck off the kitchen as well as primary bathroom and walk in closet. This move-in ready home is in immaculate condition with plenty of parking and a very special back yard with mature fruit trees, plantings and irrigation system, this is a unique home, beautifully positioned on a tranquil lot. Largely finished basement with kitchenette and walk out access.

Listed by Julie Joyce

·

Coldwell Banker Realty - Milton

·

617-921-5380

Last updated November 17, 2025

·

Source: MLSPin #73452060

Listing Facts

  • TypeSingle-family
  • NeighborhoodStoughton
  • Bedrooms4
  • Bathrooms3
  • Days on Prevu13
  • Taxes$8,059/year
  • Size2,739 sqft
  • Price per sqft$292

Amenities

  • Air Conditioning
  • Parking

Location

Mortgage Calculator

Listing History

11/06/2025
Listed by Coldwell Banker Realty - Milton
$799,000

Property Details for 32 Marys Way

Association

Amenities

  • Community Features: Public Transportation, T-Station

Exterior

Construction

  • Year Built: 1986
  • Year Built Details: Approximate
  • Architectural Style: Raised Ranch, Split Entry

Measurements

  • Building Area Total: 2,739
  • Building Area Units: Square Feet
  • Lot Features: Easements
  • Lot Size Acres: 1.16
  • Lot Size Area: 1
  • Lot Size Square Feet: 50,529
  • Lot Size Units: Acres

Financial

Taxes

  • Parcel Number: M0030B0090L0000,4313511
  • Tax Annual Amount: $8,059.00
  • Tax Assessed Value: $633,100.00
  • Tax Year: 2024

Interior

Features

  • Fireplace: Yes
  • Fireplaces Total: 1
  • Flooring: Wood, Carpet

Measurements

  • Living Area: 2,739
  • Living Area Source: Public Record

Rooms

  • Basement: Finished, Walk-Out Access, Interior Entry
  • Bathrooms Full: 2
  • Bathrooms Half: 1
  • Bathrooms Total Integer: 3
  • Bedrooms Total: 4
  • Rooms Total: 7

Parking

Parking

  • Parking Total: 6

Schools

Elementary School

  • Elementary School: West

High School

  • High School: Stoughton Hs

Middle or Junior School

  • Middle Or Junior School: O'donnell

Utilities

Equipment

  • Cooling: Central Air
  • Has Cooling: Yes
  • Heating: Forced Air, Natural Gas
  • Has Heating: Yes
  • Sewer: Public Sewer
  • Utilities: For Gas Range
  • Water Source: Public

The property listing data and information, or the Images, set forth herein were provided to MLS Property Information Network, Inc. from third party sources, including sellers, lessors, landlords and public records, and were compiled by MLS Property Information Network, Inc. The property listing data and information, and the Images, are for the personal, non commercial use of consumers having a good faith interest in purchasing, leasing or renting listed properties of the type displayed to them and may not be used for any purpose other than to identify prospective properties which such consumers may have a good faith interest in purchasing, leasing or renting. MLS Property Information Network, Inc. and its subscribers disclaim any and all representations and warranties as to the accuracy of the property listing data and information, or as to the accuracy of any of the Images, set forth herein.

Full MLS Disclaimers

Rebate estimate is indicative only and based on listing price and estimated buyer's agent commission paid by owner, if applicable. Final rebates are subject to Terms of Use and may vary due to final negotiated transaction terms.