BuySellBlogBrowse Listings

2907 S Locust StreetDenver, CO 80222

For Sale

$339,900

Smart Buyer Rebate - Ask

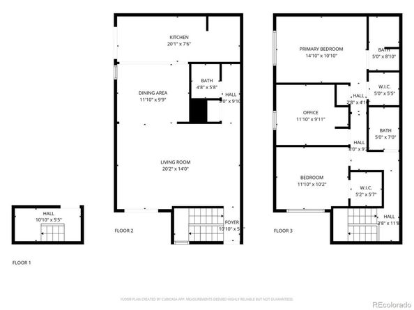
Light and bright 3 BEDROOM, 3 BATH corner unit townhome (legal description is condo) in SE Denver with over 1,500 square ft of living area and 2-assigned parking spaces in an under-cover, secure garage. The home has been remodeled to create an open living space. Double pane windows, sliding doors, and sliding interior glass doors were added. There is an in-home full size washer and dryer, granite kitchen counters, and new carpet throughout. Abundant sunlight fills the first floor which has a patio off the living area and balcony off the kitchen. The fenced private patio offers wonderful outdoor space for reading, a garden, and a place for a pet. The second floor has 3 bedrooms and 2 baths. Two of the three bedrooms have walk-in closets. The two assigned parking spaces in the garage have additional storage cabinets and are steps from the lower level entry door of the home. The building is approved for FHA loans. The HOA fee includes exterior maintenance (without roof), water, trash, sewer, snow removal, and maintenance of the grounds. Great location near Shopping, Parks, Restaurants, and the Colorado Athletic Club. The elementary school is Bradley International, a Blue Ribbon school offering a Gifted & Talented program and International Baccalaureate curriculum.

Listed by Jane Wilson

·

License #260871

·

Wallace Properties

·

303-478-2892

Listed by Midge Wallace

·

License #11193

·

Wallace Properties

Last updated November 18, 2025

·

Source: REcolorado #5315877

Listing Facts

  • TypeCondo
  • NeighborhoodHampden
  • Bedrooms3
  • Bathrooms3
  • Days on Prevu78
  • HOA/Maint. Fees$527/month
  • Taxes$1,431/year
  • Size1,509 sqft
  • Price per sqft$225

Amenities

  • Dishwasher
  • Private Outdoor Space
  • Washer/Dryer
  • Pets Allowed
  • Air Conditioning
  • Parking
  • Swimming Pool

Location

Mortgage Calculator

Listing History

11/18/2025
Price Decreased
$339,900
09/02/2025
Listed by Wallace Properties
$349,900

Property Details for 2907 S Locust Street

Association

Amenities

  • Association Amenities: Pool
  • Pets Allowed: Cats OK, Dogs OK

Fees

  • Association Fee: $527.00 Monthly
  • Association Fee Includes: Exterior Maintenance W/Out Roof, Irrigation, Maintenance Grounds, Sewer, Snow Removal, Trash, Water

General

  • Association Name: Plaza III - Condos

Exterior

Construction

  • Number Of Units Total: 8
  • Property Attached: Yes
  • Property Condition: Updated/Remodeled
  • Structure Type: Low Rise (1-3)
  • Window Features: Double Pane Windows, Window Coverings
  • Year Built: 1970
  • Architectural Style: Mid-Century Modern
  • Building Name: Plaza III Condos
  • Common Walls: No One Above, No One Below, 2+ Common Walls
  • Construction Materials: Stucco
  • Entry Level: 1
  • Entry Location: Ground
  • Exterior Features: Balcony

Features

  • Direction Faces: West
  • Fencing: Partial
  • Patio And Porch Features: Patio
  • Pool Features: Outdoor Pool

Measurements

  • Building Area Total: 1,509
  • Lot Features: Landscaped, Near Public Transit

Financial

Taxes

  • Parcel Number: 6322-02-039
  • Tax Annual Amount: $1,431.00
  • Tax Year: 2024

Interior

Features

  • Appliances: Dishwasher, Disposal, Dryer
  • Flooring: Carpet, Tile
  • Interior Features: Granite Counters, Open Floorplan, Smoke Free, Walk-In Closet(s)

Measurements

  • Living Area: 1,509

Rooms

  • Basement: Interior Entry
  • Bathrooms Full: 2
  • Bathrooms Half: 1
  • Bathrooms Total Integer: 3
  • Bedrooms Total: 3
  • Main Level Bathrooms: 1

Other

General

  • Exclusions: furnishings and wall art

Location

  • Subdivision Name: Plaza III Condos

Parking

Parking

  • Attached Garage: Yes
  • Garage Spaces: 2
  • Parking Features: Underground
  • Parking Total: 2

Schools

Elementary School

  • Elementary School: Bradley
  • Elementary School District: Denver 1

High School

  • High School: Thomas Jefferson
  • High School District: Denver 1

Middle or Junior School

  • Middle Or Junior School: Hamilton
  • Middle Or Junior School District: Denver 1

Utilities

Equipment

  • Cooling: Central Air
  • Electric: 110V, 220 Volts
  • Heating: Forced Air
  • Laundry Features: In Unit
  • Sewer: Public Sewer
  • Utilities: Cable Available, Electricity Connected, Internet Access (Wired), Natural Gas Available, Phone Available
  • Water Source: Public

The content relating to real estate for sale in this Web site comes in part from the Internet Data eXchange ("IDX") program of METROLIST, INC., DBA RECOLORADO® Real estate listings held by brokers other than Prevu are marked with the IDX Logo. This information is being provided for the consumers' personal, non-commercial use and may not be used for any other purpose. All information subject to change and should be independently verified.

Full MLS Disclaimers

Rebate estimate is indicative only and based on listing price and estimated buyer's agent commission paid by owner, if applicable. Final rebates are subject to Terms of Use and may vary due to final negotiated transaction terms.