BuySellBlogBrowse Listings

282 Nevada 282Newton, MA 02460

For Sale

$1,798,750

Smart Buyer Rebate $8,994

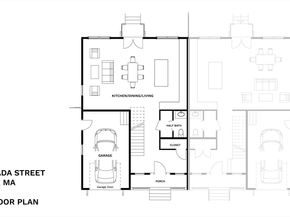
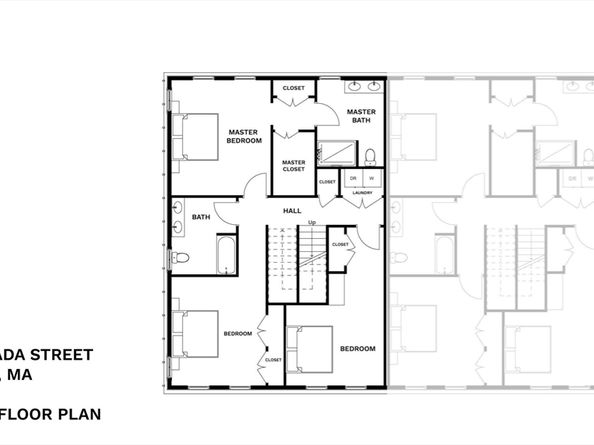
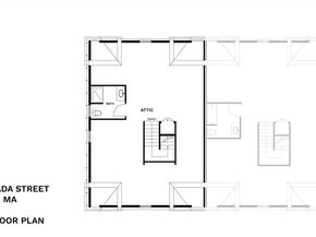
The 3rd of 6 townhomes being offered at Lago Newton. Each unit is similar with ~3,600sqft of living space. The 1st floor has an open living and dining space with a designer kitchen fitted with custom cabinetry and Thermador appliances. Spacious living room with a fireplace and built-ins. The dining area opens to the back stone paved patio and fenced in yard. The 2nd floor has 3 spacious bedrooms with a primary suite with 2 walk-in closets and a spa-like bathroom with a rainshower and soaking tub. The 4th level is a spacious loft filled with natural light, ideal as a bedroom or office complete with a full bathroom. The lower level has tall ceilings, a family room and an extra bedroom with full bathroom. In addition each unit will enjoy a lush green space with benches and a pet run that is exclusively for Lago residents only. Enjoy the proximity of schools, restuarants, public transportion, parks and convenient to the highway. Visit the Lago Newton website for additional information

Listed by Carmine Petruzziello

·

Bellafi Real Estate, Inc.

·

617-454-4042

Listed by Stephanie Lau

·

Bellafi Real Estate, Inc.

Last updated November 14, 2025

·

Source: MLSPin #73413586

Listing Facts

  • TypeCondo
  • NeighborhoodNonantum
  • Bedrooms4
  • Bathrooms5
  • Days on Prevu106
  • HOA/Maint. Fees$400/month
  • Taxes$99,999,999/year
  • Size3,600 sqft
  • Price per sqft$500

Amenities

  • Pets Allowed
  • Parking

Location

Mortgage Calculator

Listing History

11/10/2025
Price Decreased
$1,798,750
09/24/2025
Price Decreased
$1,868,000
08/05/2025
Listed by Bellafi Real Estate, Inc.
$1,898,000

Property Details for 282 Nevada 282

Association

Amenities

  • Community Features: Public Transportation, Park, Highway Access, Public School
  • Pets Allowed: Yes w/ Restrictions

Fees

  • Association Fee: $400.00 Monthly
  • Association Fee Includes: Insurance, Maintenance Structure, Snow Removal

Exterior

Construction

  • Number Of Units Total: 6
  • Stories: 4
  • Stories Total: 4
  • Structure Type: Townhouse
  • Year Built: 2025
  • Year Built Details: Approximate
  • Building Name: Il Lago
  • Entry Level: 1

Measurements

  • Building Area Total: 3,600
  • Building Area Units: Square Feet
  • Lot Size Units: Acres

Financial

Taxes

  • Tax Annual Amount: $99,999,999.00
  • Tax Assessed Value: $999,999,999.00
  • Tax Year: 9999

Interior

Features

  • Fireplace: Yes
  • Fireplaces Total: 1

Measurements

  • Living Area: 3,600
  • Living Area Source: Owner

Rooms

  • Basement: Y
  • Bathrooms Full: 4
  • Bathrooms Half: 1
  • Bathrooms Total Integer: 5
  • Bedrooms Total: 4
  • Rooms Total: 9

Other

Features

  • Accessibility Features: No

Parking

Parking

  • Attached Garage: Yes
  • Covered Spaces: 1
  • Garage Spaces: 1
  • Garage: Yes
  • Parking Features: Attached
  • Parking Total: 1

Utilities

Equipment

  • Cooling: Air Source Heat Pumps (ASHP)
  • Has Cooling: Yes
  • Heating: Air Source Heat Pumps (ASHP)
  • Has Heating: Yes
  • Sewer: Public Sewer
  • Water Source: Public

The property listing data and information, or the Images, set forth herein were provided to MLS Property Information Network, Inc. from third party sources, including sellers, lessors, landlords and public records, and were compiled by MLS Property Information Network, Inc. The property listing data and information, and the Images, are for the personal, non commercial use of consumers having a good faith interest in purchasing, leasing or renting listed properties of the type displayed to them and may not be used for any purpose other than to identify prospective properties which such consumers may have a good faith interest in purchasing, leasing or renting. MLS Property Information Network, Inc. and its subscribers disclaim any and all representations and warranties as to the accuracy of the property listing data and information, or as to the accuracy of any of the Images, set forth herein.

Full MLS Disclaimers

Rebate estimate is indicative only and based on listing price and estimated buyer's agent commission paid by owner, if applicable. Final rebates are subject to Terms of Use and may vary due to final negotiated transaction terms.