BuySellBlogBrowse Listings

2731 Safe Harbor Drive Lewisville, Texas 75056

For Sale

$625,000

Smart Buyer Rebate $6,250

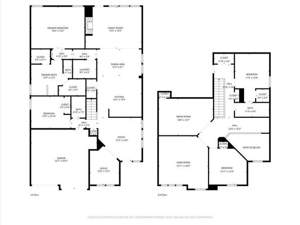
Welcome to this stunning 4-bedroom, 3-bathroom home where comfort, style, and lifestyle come together seamlessly. Step into a welcoming entryway with tall ceilings and rich engineered hardwood floors, complemented by fresh interior paint that brings a bright, updated feel to the home. A designated office space creates an ideal setting for remote work or focused study. A first-floor bedroom with its own full bathroom sits conveniently near the entry, ideal for guests or multigenerational living. The expansive kitchen features granite countertops, white cabinets, a large island, and abundant storage, making it the heart of the home. The adjacent dining room is perfectly positioned for both casual meals and formal entertaining. The large family room showcases an accent wall, built-in speakers, and a stone fireplace, creating a warm and inviting atmosphere. Tucked at the back of the home, the primary bedroom offers privacy and features windows overlooking the backyard. The updated primary bathroom includes dual sinks, a separate tub and shower, and two spacious closets, providing a spa-like retreat. Upstairs, you’ll find two secondary bedrooms with a shared full bathroom, offering comfort and flexibility. A dedicated media room sets the stage for movie nights, while the game room with built-in storage adds space for hobbies and play. A large attic space presents a fantastic opportunity for future expansion, ideal for a second primary bedroom or workspace. Step outside to a spacious patio, perfect for outdoor dining and entertaining. Residents enjoy quick access to East Hill Park, featuring walking trails, a playground, and green space for outdoor adventures. Minutes away, you’ll find shopping, dining, and entertainment at Legacy West, Grandscape, and The Star. Lake Lewisville is nearby, giving you access to waterfront recreation, boating, and lake views. This home delivers a blend of comfort, convenience, and lifestyle in one of the area’s most connected communities.

Listed by Darby Merriman

·

Mission To Close

·

469-682-3455

Last updated November 16, 2025

·

Source: NTREIS #21109038

Listing Facts

  • TypeSingle-family
  • NeighborhoodLewisville
  • Bedrooms4
  • Bathrooms3
  • Days on Prevu9
  • HOA/Maint. Fees$238/annual
  • Size3,287 sqft
  • Price per sqft$190

Amenities

  • Dishwasher
  • Pets Allowed
  • Air Conditioning
  • Parking

Location

Mortgage Calculator

Listing History

11/10/2025
Listed by Mission To Close
$625,000

Property Details for 2731 Safe Harbor Drive

Association

Amenities

  • Community Features: Curbs, Park, Sidewalks

Fees

  • Association Fee: $238.00 Annually
  • Association Fee Includes: Management Fees

Exterior

Construction

  • Roof: Composition, Shingle
  • Window Features: Window Coverings
  • Year Built: 2007
  • Year Built Details: Preowned
  • Architectural Style: Traditional
  • Construction Materials: Brick, Rock/Stone

Features

  • Fencing: Back Yard, Fenced, Wood

Measurements

  • Lot Features: Few Trees, Interior Lot, Landscaped
  • Lot Size Acres: 0.14
  • Lot Size Area: 0
  • Lot Size Square Feet: 6,324
  • Lot Size Units: Acres

Financial

Taxes

  • Parcel Number: R280739

Interior

Features

  • Appliances: Dishwasher, Disposal, Electric Cooktop, Microwave, Convection Oven
  • Fireplace Features: Gas Starter, Living Room, Stone
  • Fireplaces Total: 1
  • Flooring: Carpet, Engineered Wood, Tile
  • Interior Features: Built-in Features, Decorative Lighting, Eat-in Kitchen, Granite Counters, High Speed Internet Available, Kitchen Island, Open Floorplan, Pantry, Sound System Wiring, Walk-In Closet(s)

Measurements

  • Living Area: 3,287

Rooms

  • Bathrooms Full: 3
  • Bathrooms Total Integer: 3
  • Bedrooms Total: 4

Other

Location

  • Subdivision Name: Meridian Add Ph 2a & 2b
  • Tax Block: J
  • Tax Lot: 9

Parking

Parking

  • Attached Garage: Yes
  • Covered Spaces: 2
  • Garage Spaces: 2
  • Garage: Yes
  • Parking Features: Garage, Garage Faces Front

Schools

Elementary School

  • Elementary School: Camey

Utilities

Equipment

  • Cooling: Ceiling Fan(s), Central Air
  • Heating: Central, Fireplace(s)
  • Laundry Features: Electric Dryer Hookup, Utility Room, Full Size W/D Area
  • Utilities: Cable Available, City Sewer, City Water, Electricity Connected

Based on information from NTREIS and/or other sources. All data, including all measurements and calculations of area, is obtained from various sources and has not been, and will not be, verified by Prevu or the MLS. Information is provided exclusively for consumer's personal, non-commercial use and may not be used for any purpose other than to identify prospective properties consumer may be interested in purchasing.

Full MLS Disclaimers

Rebate estimate is indicative only and based on listing price and estimated buyer's agent commission paid by owner, if applicable. Final rebates are subject to Terms of Use and may vary due to final negotiated transaction terms.