BuySellBlogBrowse Listings

24 Country Club Dr 24Plymouth, MA 02360

For Sale

$882,000

Smart Buyer Rebate $4,410

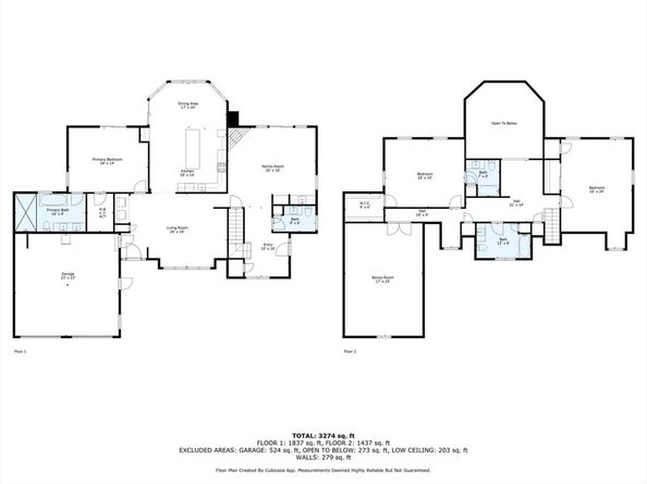
**VRP Seller will Entertain Offers from $882,000K - $940,000K**Single Family attached listing is actually a Condo being offered. This attractive property presents an exceptional opportunity for sophisticated living in desirable Plymouth Country Club location. Within the heart of this home resides a kitchen designed for both culinary artistry and social engagement, showcasing a large kitchen island that serves as a central gathering point,complemented by the sleek lines of shaker cabinets and the elegance of stone countertops, and the convenience of a built-in refrigerator.The living room is an inviting space, enhanced by the classic touch of crown molding and the cozy ambiance of a fireplace, creating a perfect setting for relaxation and conversation. The primary bedroom offers a private retreat, featuring crown molding, an ensuite bathroom with custom shower, soaking tub and private deck. The second floor has additional Primary w/ ensuite, 2 bedrooms, full bath 2 car attached garage.

Listed by Kim Duke

·

Sold By Gold LLC

·

508-944-2249

Last updated November 19, 2025

·

Source: MLSPin #73439393

Listing Facts

  • TypeSingle-family
  • NeighborhoodPlymouth County
  • Bedrooms4
  • Bathrooms4
  • Days on Prevu85
  • Taxes$6,974/year
  • Size3,521 sqft
  • Price per sqft$250

Amenities

  • Dishwasher
  • Private Outdoor Space
  • Air Conditioning
  • Parking

Location

Mortgage Calculator

Listing History

11/18/2025
Price Decreased
$882,000
10/29/2025
Price Decreased
$939,000
08/26/2025
Listed by Sold By Gold LLC
$959,000

Property Details for 24 Country Club Dr 24

Association

Amenities

  • Community Features: Shopping, Golf, Medical Facility, Highway Access, Public School

Exterior

Construction

  • Property Attached: Yes
  • Roof: Asphalt/Composition Shingles
  • Window Features: Insulated Windows
  • Year Built: 1988
  • Year Built Details: Actual
  • Architectural Style: Colonial
  • Construction Materials: Frame
  • Exterior Features: Porch, Deck

Features

  • Patio And Porch Features: Porch, Deck
  • Waterfront Features: Ocean, 1 To 2 Mile To Beach, Beach Ownership(Public)

Measurements

  • Building Area Total: 3,521
  • Building Area Units: Square Feet
  • Lot Features: Level
  • Lot Size Square Feet: 0
  • Lot Size Units: Acres

Financial

Taxes

  • Parcel Number: 1120442
  • Tax Annual Amount: $6,974.00
  • Tax Assessed Value: $549,600.00
  • Tax Year: 2025

Interior

Features

  • Appliances: Electric Water Heater, Range, Dishwasher
  • Fireplace: Yes
  • Fireplaces Total: 1
  • Flooring: Wood, Carpet
  • Interior Features: Wet Bar

Measurements

  • Living Area: 3,521
  • Living Area Source: Public Record

Rooms

  • Bathrooms Full: 3
  • Bathrooms Half: 1
  • Bathrooms Total Integer: 4
  • Bedrooms Total: 4
  • Rooms Total: 8

Parking

Parking

  • Covered Spaces: 2
  • Garage Spaces: 2
  • Garage: Yes
  • Parking Total: 4

Utilities

Equipment

  • Cooling: Central Air
  • Has Cooling: Yes
  • Electric: 200+ Amp Service
  • Heating: Central, Forced Air, Propane
  • Has Heating: Yes
  • Sewer: Private Sewer
  • Utilities: For Electric Range
  • Water Source: Public

The property listing data and information, or the Images, set forth herein were provided to MLS Property Information Network, Inc. from third party sources, including sellers, lessors, landlords and public records, and were compiled by MLS Property Information Network, Inc. The property listing data and information, and the Images, are for the personal, non commercial use of consumers having a good faith interest in purchasing, leasing or renting listed properties of the type displayed to them and may not be used for any purpose other than to identify prospective properties which such consumers may have a good faith interest in purchasing, leasing or renting. MLS Property Information Network, Inc. and its subscribers disclaim any and all representations and warranties as to the accuracy of the property listing data and information, or as to the accuracy of any of the Images, set forth herein.

Full MLS Disclaimers

Rebate estimate is indicative only and based on listing price and estimated buyer's agent commission paid by owner, if applicable. Final rebates are subject to Terms of Use and may vary due to final negotiated transaction terms.