BuySellBlogBrowse Listings

226 King George Road Ponder, Texas 76259

For Sale

$418,500

Smart Buyer Rebate $2,555

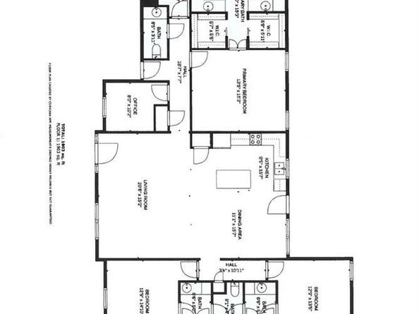
Discover the perfect blend of comfort and complete peace of mind in this stunning 3-bed, 2.5-bath home in the quiet Steamboat Estates. An open and inviting floor plan flows beautifully from the living room to the gourmet kitchen, featuring an expansive island and stainless steel appliances, making it ideal for entertaining.

Retreat to the serene primary suite, your private sanctuary complete with dual vanities, a deep soaking tub, a separate walk-in shower, and two generous walk-in closets. A dedicated home office provides a quiet space for work or study.

Your private backyard oasis awaits! Step outside to a custom-designed outdoor living space, featuring a covered stone patio, a charming pergola with a built-in fire pit and seating, and a full outdoor grill station. It's the perfect setting for relaxing evenings and summer BBQs.

Live worry-free! This home’s major systems are NEW about 48k worth. Enjoy a new HVAC (2023)20k, a new Water Heater (Jan 2025)>4k, and a Foundation (Dec 2024)10k with a transferable warranty. Added luxuries include a whole-home water softener, filtration system8-9k, and built-in surround sound. This meticulously cared-for home is truly move-in ready. Schedule your showing today!

Listed by Jonathan Wang

·

Keller Williams Realty DPR

·

408-838-8587

Last updated November 18, 2025

·

Source: NTREIS #21103022

Listing Facts

  • TypeSingle-family
  • NeighborhoodJustin-Roanoke
  • Bedrooms3
  • Bathrooms3
  • Days on Prevu2
  • Size2,030 sqft
  • Price per sqft$206

Amenities

  • Dishwasher
  • Private Outdoor Space
  • Pets Allowed
  • Air Conditioning
  • Parking

Location

Mortgage Calculator

Listing History

11/17/2025
Listed by Keller Williams Realty DPR
$418,500

Property Details for 226 King George Road

Association

Amenities

  • Community Features: Curbs, Sidewalks

Exterior

Construction

  • Roof: Composition
  • Window Features: Window Coverings
  • Year Built: 2006
  • Year Built Details: Preowned
  • Architectural Style: Traditional
  • Construction Materials: Brick
  • Exterior Features: Attached Grill, Built-in Barbecue, Covered Patio/Porch, Fire Pit, Garden(s)

Features

  • Fencing: Wood
  • Other Structures: Pergola
  • Patio And Porch Features: Covered, Patio, Rear Porch

Measurements

  • Lot Features: Few Trees, Interior Lot, Landscaped, Lrg. Backyard Grass, Subdivision
  • Lot Size Acres: 0.25
  • Lot Size Area: 0
  • Lot Size Source: Assessor
  • Lot Size Square Feet: 10,890
  • Lot Size Units: Acres

Financial

Taxes

  • Parcel Number: R265933

Interior

Features

  • Appliances: Dishwasher, Disposal, Electric Oven, Electric Range, Electric Water Heater, Microwave, Water Filter, Water Purifier
  • Flooring: Carpet, Ceramic Tile, Hardwood
  • Interior Features: Cable TV Available, Cedar Closet(s), Double Vanity, Eat-in Kitchen, High Speed Internet Available, Kitchen Island, Pantry, Walk-In Closet(s)

Measurements

  • Living Area: 2,030

Rooms

  • Bathrooms Full: 2
  • Bathrooms Half: 1
  • Bathrooms Total Integer: 3
  • Bedrooms Total: 3

Other

Environmental

  • Green Energy Efficient: Appliances,HVAC,Waterheater

General

  • Exclusions: All personal property. Refrigerator, washer, and dryer do not convey. Seller retains all mineral rights. Yet, everything is negotiable!

Location

  • Subdivision Name: Steamboat Estates Ph 1
  • Tax Block: D
  • Tax Lot: 27

Parking

Parking

  • Attached Garage: Yes
  • Covered Spaces: 2
  • Garage Spaces: 2
  • Garage: Yes
  • Parking Features: Epoxy Flooring, Garage, Garage Door Opener, Garage Faces Front, Garage Single Door, Side By Side

Schools

Elementary School

  • Elementary School: Ponder

Utilities

Equipment

  • Cooling: Ceiling Fan(s), Central Air, Electric
  • Heating: Central, Electric
  • Laundry Features: Electric Dryer Hookup, Utility Room, Full Size W/D Area, Washer Hookup
  • Utilities: Asphalt, Cable Available, City Sewer, City Water, Concrete, Curbs, Electricity Connected, Phone Available, Sidewalk, Underground Utilities

Based on information from NTREIS and/or other sources. All data, including all measurements and calculations of area, is obtained from various sources and has not been, and will not be, verified by Prevu or the MLS. Information is provided exclusively for consumer's personal, non-commercial use and may not be used for any purpose other than to identify prospective properties consumer may be interested in purchasing.

Full MLS Disclaimers

Rebate estimate is indicative only and based on listing price and estimated buyer's agent commission paid by owner, if applicable. Final rebates are subject to Terms of Use and may vary due to final negotiated transaction terms.