BuySellBlogBrowse Listings

211 Bedford RoadChappaqua, NY 10514

For Sale

$2,850,000

Smart Buyer Rebate $28,500

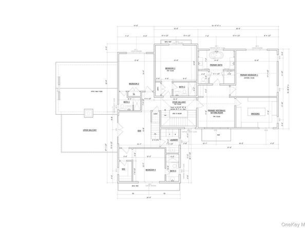
Exciting and new state-of-the-art expansion and renovation by highly recognized local developer, Tavo Development teaming with noted architect Teo Seguenza. Ready for occupancy in Spring 2026. Meticulous attention to detail, years of experience and master craftsmanship are combined in this new offering, encompassing 5,536 sq ft, 4 bedrooms, 5 full and 2 half baths, a finished walk-out lower level and all the modern amenities for today’s discerning buyer. The light-filled main level highlights a chef’s kitchen with island and breakfast room, formal living room and dining room, family room, large mudroom and a screened in porch. Upstairs, the primary suite is enhanced with a spa-like bath and oversized walk-in closet. Two additional ensuite bedrooms, bonus room with access to a large balcony and laundry complete the upper level. The lower-level with an exercise room, lounge, laundry and full bath segues to the outdoors with almost an acre of flat usable grounds and site plan approval for a pool. Interior pictures displayed are samples of previous Tavo built homes.
A perfect combination of style, space, and comfort. Close to town, highways and 50 minutes to NYC.

Listed by Brian Milton

·

Compass Greater NY, LLC

·

914-228-2656

Last updated November 18, 2025

·

Source: OneKey #888129

Listing Facts

  • TypeSingle-family
  • NeighborhoodNew Castle
  • Bedrooms4
  • Bathrooms7
  • Days on Prevu51
  • Taxes$29,623/year
  • Size5,536 sqft
  • Price per sqft$515

Amenities

  • Dishwasher
  • Private Outdoor Space
  • Washer/Dryer
  • Air Conditioning

Location

Mortgage Calculator

Listing History

09/29/2025
Status changed to Active
$2,850,000
09/29/2025
Listed by Compass Greater NY, LLC
$2,850,000

Property Details for 211 Bedford Road

Exterior

Construction

  • Property Condition: Under Construction, Updated/Remodeled
  • Year Built: 1954
  • Architectural Style: Colonial, Farmhouse, Modern
  • Construction Materials: Frame
  • Exterior Features: Balcony

Features

  • Patio And Porch Features: Deck, Porch, Screened

Measurements

  • Building Area Units: Square Feet
  • Lot Size Acres: 0.95

Financial

Taxes

  • Parcel Number: 3600-100-008-00003-000-0038
  • Tax Annual Amount: $29,623.00
  • Tax Assessed Value: $171,540.00
  • Tax Year: 2025

Interior

Features

  • Appliances: Dishwasher, Dryer, Freezer, Microwave, Oven, Range, Refrigerator, Washer
  • Fireplace: Yes
  • Fireplaces Total: 1
  • Interior Features: Chefs Kitchen, Double Vanity, Entrance Foyer, Formal Dining, High Ceilings, Kitchen Island, Open Floorplan, Primary Bathroom, Walk-In Closet(s)

Measurements

  • Living Area: 5,536
  • Living Area Source: Plans

Rooms

  • Basement: Finished, Full, Walk-Out Access
  • Has Basement: Yes
  • Bathrooms Full: 5
  • Bathrooms Half: 2
  • Bathrooms Total Integer: 7
  • Bedrooms Total: 4
  • Rooms Total: 13

Parking

Parking

  • Garage Spaces: 2
  • Garage: Yes

Schools

Elementary School

  • Elementary School: Douglas G Grafflin School
  • Elementary School District: Chappaqua

High School

  • High School: Horace Greeley High School
  • High School District: Chappaqua

Middle or Junior School

  • Middle Or Junior School: Robert E Bell School
  • Middle Or Junior School District: Chappaqua

Utilities

Equipment

  • Cooling: Central Air
  • Heating: Forced Air
  • Laundry Features: Multiple Locations
  • Sewer: Septic Tank
  • Utilities: Natural Gas Connected
  • Water Source: Public

The data relating to real estate for sale on this website comes in part from the IDX Program of OneKey™ MLS. The source of the displayed data is either the property owner or public record provided by non-governmental third parties. It is believed to be reliable but not guaranteed. This information is provided exclusively for consumers’ personal, non-commercial use. Information Copyright 2025, OneKey™ MLS. All Rights Reserved.

Full MLS Disclaimers

Rebate estimate is indicative only and based on listing price and estimated buyer's agent commission paid by owner, if applicable. Final rebates are subject to Terms of Use and may vary due to final negotiated transaction terms.