BuySellBlogBrowse Listings

1721 Q Street SEWashington, DC 20020

For Sale

$324,000

Smart Buyer Rebate - Ask

Your investment doesn’t chase momentum; it sets it.

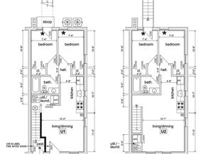
This mid-century brick duplex (RA-2 zoning) offers an opportunity to evolve from a two-story shell into a pair of chic city residences that perform like investment engines. Built in 1950, the masonry walls have already proved their endurance; they only wait for new imagination to take the stage. Buy the dirt today, and let billions in public and private capital redraw the skyline around you tomorrow.

That stage is expanding by the day. Four blocks upriver, the District has inked a landmark agreement with the Washington Commanders: a $2.7 billion private investment in a 65,000-seat, year-round roofed stadium that will occupy just 11 percent of the 180-acre RFK campus. Surrounding parcels will deliver 5,000–6,000 new homes, vibrant retail, hotels, parkland, a youth sportsplex, and critically, 14,000 construction and 2,000 permanent jobs. The stadium doors swing open in 2030, but land values are already moving.

To the west, pilings are being readied for Washington’s first elevated park. The 11th Street Bridge Park, fully funded at $92 million, breaks ground this year and opens in 2026, stitching Navy Yard to Anacostia with an X-shaped expanse of performance lawns, cafés, and river overlooks that aims to draw roughly one million visitors annually.

These headline projects ride atop the broader Anacostia Waterfront Initiative, a 30-year, $10 billion commitment to trails, wetlands, transit spurs, and river-front culture. Each shovel of dirt poured into the riverbanks feeds the same narrative: southeast DC is not an afterthought; it is the next frontier of the capital’s growth.

Against that backdrop, the duplex becomes more than a renovation exercise, it is a lever. Subdivide into four gracious flats and surf the swelling demand for design-forward rentals. Craft two generous homes and let one unit retire your debt service. Or hold the structure as a long-term land play, banking on the skyline that will ascend around you. The RA-2 envelope, the absence of historic constraints, and a streetscape primed for architectural experimentation give you license to lead, not follow.

Opportunities to buy ahead of a billion-dollar wave rarely linger. Secure the parcel before the stadium lights blaze, before the bridge park hums with twilight concerts, before the waterfront trail curls past your doorstep. Then watch as the city’s next chapter unfolds around an address you already own.

Listed by Marc Cashin

·

License #BR40000263

·

Corcoran McEnearney

·

2029003126

Last updated November 11, 2025

·

Source: BrightMLS #DCDC2230360

Listing Facts

  • TypeSingle-family
  • NeighborhoodFairlawn
  • Bedrooms2
  • Bathrooms1
  • Days on Prevu15
  • Taxes$9,008/year
  • Size1,258 sqft
  • Price per sqft$258

Location

Mortgage Calculator

Listing History

11/04/2025
Listed by Corcoran McEnearney
$324,000

Property Details for 1721 Q Street SE

Exterior

Construction

  • New Construction: No
  • Year Built: 1950
  • Architectural Style: Colonial, Traditional, Art Deco
  • Construction Materials: Brick

Features

  • Other Structures: Above Grade, Below Grade
  • Waterfront: No

Measurements

  • Lot Size Acres: 0.03
  • Lot Size Source: Assessor
  • Lot Size Square Feet: 1,513
  • Lot Size Units: Square Feet

Financial

Taxes

  • Tax Annual Amount: $9,008.00
  • Tax Year: 2025

Interior

Features

  • Fireplace: No

Measurements

  • Living Area: 1,258
  • Living Area Source: Assessor

Rooms

  • Has Basement: No
  • Bathrooms Full: 1
  • Bathrooms Total Integer: 1
  • Bedrooms Total: 2

Other

General

  • Senior Community: No

Location

  • Subdivision Name: ANACOSTIA
  • Tax Lot: 811

Parking

Parking

  • Garage: No

Utilities

Equipment

  • Heating: Hot Water
  • Has Heating: Yes
  • Sewer: Public Sewer
  • Water Source: Public

The data relating to real estate for sale on this website appears in part through the BRIGHT Internet Data Exchange program, a voluntary cooperative exchange of property listing data between licensed real estate brokerage firms in which participates, and is provided by BRIGHT through a licensing agreement. The information provided by this website is for the personal, non-commercial use of consumers and may not be used for any purpose other than to identify prospective properties consumers may be interested in purchasing. Copyright BRIGHT, All Rights Reserved.

Full MLS Disclaimers

Rebate estimate is indicative only and based on listing price and estimated buyer's agent commission paid by owner, if applicable. Final rebates are subject to Terms of Use and may vary due to final negotiated transaction terms.