BuySellBlogBrowse Listings

15 Stone Bridge RoadPurchase, NY 10577

For Sale

$5,695,000

Smart Buyer Rebate $56,950

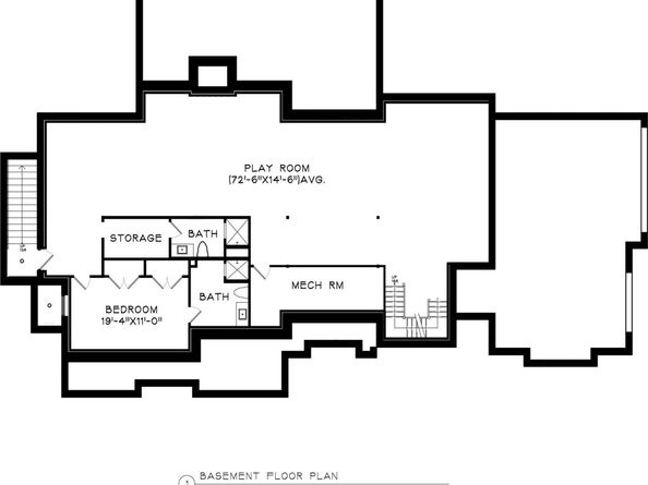
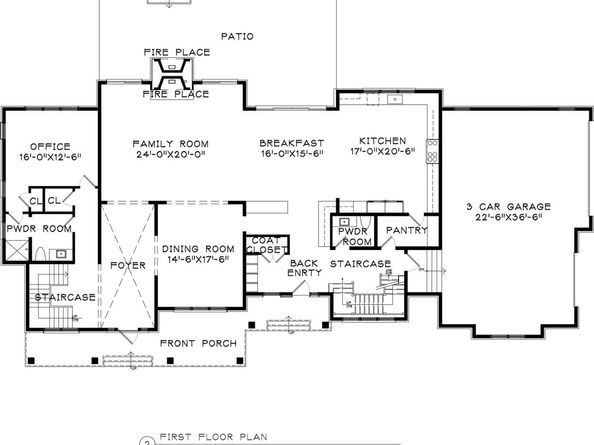
Stunning new home at "Sarosca Farm Estates", this home is at the end of the cul-de-sac on Stone Bridge Road on 1.7 acres, and has all the amenities you can ask for. The 1st floor features an open floor plan including kitchen with top of the line appliances, large center island, breakfast area, family room with fireplace, private office with a full bath, spacious dining room, back stairs and mud room with custom built-ins complete the main level. A superb primary suite with a fireplace. walk in closets, and spa like bathroom. Four additional bedrooms all with their own bathroom and laundry room complete the 2nd floor. The finished lower level has high ceilings, & will include an open recreation area with a full bathroom, bedroom and full bath, buyer can have it custom finished with a theatre, gym, or wine cellar. The backyard is an entertainers dream featuring privacy with panoramic views, a stone patio, pool and an outdoor fireplace. Additional amenities include, Masonry brick fireplaces, stone pavers in driveway, 3 car garage with radiant heat, custom moldings and sleek finishes throughout, still time to customize and make it your own.

Listed by Joseph Stilo

·

Julia B Fee Sothebys Int. Rlty

·

914-967-4600

Last updated November 18, 2025

·

Source: OneKey #935300

Listing Facts

  • TypeSingle-family
  • NeighborhoodPurchase
  • Bedrooms6
  • Bathrooms9
  • Days on Prevu5
  • HOA/Maint. Fees$450/month
  • Taxes$1/year
  • Size9,147 sqft
  • Price per sqft$623

Amenities

  • Dishwasher
  • Air Conditioning
  • Parking

Location

Mortgage Calculator

Listing History

11/14/2025
Listed by Julia B Fee Sothebys Int. Rlty
$5,695,000

Property Details for 15 Stone Bridge Road

Association

Fees

  • Association Fee: $450.00 Monthly
  • Association Fee Includes: Common Area Maintenance, Other, Snow Removal

Exterior

Construction

  • Year Built: 2025
  • Architectural Style: Colonial
  • Construction Materials: Advanced Framing Technique

Features

  • Pool Private: Yes

Measurements

  • Building Area Total: 10,122
  • Building Area Units: Square Feet
  • Lot Size Acres: 1.78
  • Lot Size Square Feet: 77,271

Financial

Taxes

  • Parcel Number: 2801-000-951-00000-000-0032
  • Tax Annual Amount: $1.00
  • Tax Year: 2025

Interior

Features

  • Appliances: Convection Oven, Dishwasher, Gas Cooktop, Gas Oven, Refrigerator, Stainless Steel Appliance(s), Wine Refrigerator
  • Fireplace: Yes
  • Fireplaces Total: 3
  • Interior Features: Central Vacuum, Chefs Kitchen, Crown Molding, Entrance Foyer, Formal Dining, High Ceilings, Open Floorplan, Primary Bathroom, Recessed Lighting, Stone Counters, Walk-In Closet(s)

Measurements

  • Living Area: 9,147
  • Living Area Source: Other

Rooms

  • Basement: Finished
  • Has Basement: Yes
  • Bathrooms Full: 8
  • Bathrooms Half: 1
  • Bathrooms Total Integer: 9
  • Bedrooms Total: 6
  • Rooms Total: 12

Parking

Parking

  • Garage Spaces: 3
  • Garage: Yes
  • Parking Features: Driveway, Garage

Schools

Elementary School

  • Elementary School: Purchase
  • Elementary School District: Harrison

High School

  • High School: Harrison High School
  • High School District: Harrison

Middle or Junior School

  • Middle Or Junior School: Louis M Klein Middle School
  • Middle Or Junior School District: Harrison

Utilities

Equipment

  • Cooling: Central Air
  • Heating: Hydro Air
  • Sewer: Public Sewer
  • Utilities: Electricity Connected, Natural Gas Connected
  • Water Source: Public

The data relating to real estate for sale on this website comes in part from the IDX Program of OneKey™ MLS. The source of the displayed data is either the property owner or public record provided by non-governmental third parties. It is believed to be reliable but not guaranteed. This information is provided exclusively for consumers’ personal, non-commercial use. Information Copyright 2025, OneKey™ MLS. All Rights Reserved.

Full MLS Disclaimers

Rebate estimate is indicative only and based on listing price and estimated buyer's agent commission paid by owner, if applicable. Final rebates are subject to Terms of Use and may vary due to final negotiated transaction terms.