BuySellBlogBrowse Listings

1208 California StreetHuntington Beach, CA 92648

For Sale

$1,799,000

Smart Buyer Rebate $17,990

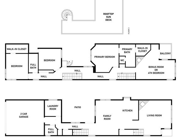
Come join the Downtown Huntington Beach Lifestyle in this fantastic beach home located just a short stroll to the beach, Main Street Village, Pacific City, Equinox, and the Pier. Schools, Parks, Doggie Beach, and shopping are all nearby! The lot for this home is 2 feet wider than most home sites, and it has a desirable floorplan which has two sets of staircases… making it the ideal design to have a separate entrance to the back bedroom. Many homes with this arrangement have configured the back bedroom into a “guest house” for in-laws, college age kids, and visitors! The home is priced very low for the area given its age, living area, and quiet street location… the price reflects the need to update this nearly all original home built in 1989. If you are looking for a house that you can remodel with all of today’s most popular finishes, this is the one. When you enter the home there is a living room with fireplace, then a transition to the kitchen, which is open to the family room with access to the sunny patio. There is a ¾ bath downstairs, which is fantastic for out-of-town guests who would like to shower without negotiating stairs. The lot for this home is deeper than many others in Downtown Huntington Beach allowing for a two car attached garage and large driveway! On the 2nd level, there is a bonus room at the front, primary bedroom with large bathroom & walk-in closet, and two Jack/Jill bedrooms. There is a spiral staircase which goes from the 2nd level hallway up to a large rooftop sundeck… it is the perfect place to enjoy gentle ocean breezes, the 4th of July fireworks, and the Pacific Airshow. This custom home has many features you will not often find… and it is "close, but not too close" to all the attractions that make Downtown Huntington Beach a wonderful place to live. Make sure you come take a look at this one, then update it with your favorite finishes!

Listed by Scot Campbell

·

License #00943759

·

Coldwell Banker-Campbell Rltrs

·

714-336-0394

Last updated November 17, 2025

·

Source: CRMLS #OC25187665

Listing Facts

  • TypeSingle-family
  • NeighborhoodYorktown
  • Bedrooms3
  • Bathrooms2
  • Days on Prevu90
  • Size2,406 sqft
  • Price per sqft$748

Amenities

  • Dishwasher
  • Private Outdoor Space
  • Parking

Location

Mortgage Calculator

Listing History

10/29/2025
Status changed to Active
$1,799,000
10/21/2025
Status changed to Removed from Feed
$1,799,000
10/18/2025
Status changed to Active
$1,799,000
10/17/2025
Status changed to Removed from Feed
$1,799,000
10/05/2025
Status changed to Active
$1,799,000
10/03/2025
Status changed to Removed from Feed
$1,799,000
09/21/2025
Status changed to Active
$1,799,000
09/20/2025
Status changed to Removed from Feed
$1,799,000
09/07/2025
Status changed to Active
$1,799,000
09/06/2025
Status changed to Removed from Feed
$1,799,000
09/05/2025
Status changed to Active
$1,799,000
09/04/2025
Status changed to Removed from Feed
$1,799,000
08/21/2025
Listed by Coldwell Banker-Campbell Rltrs
$1,799,000

Property Details for 1208 California Street

Association

Amenities

  • Community Features: Curbs, Gutter(s), Street Lights, Suburban, Sidewalks

Exterior

Construction

  • Number Of Units Total: 1
  • Property Condition: Repairs Cosmetic
  • Roof: Composition, See Remarks
  • Stories Total: 3
  • Structure Type: House
  • Year Built: 1989
  • Architectural Style: Contemporary, Traditional
  • Common Walls: No Common Walls
  • Construction Materials: Drywall, Stucco
  • Entry Level: 1
  • Entry Location: 1

Features

  • Fencing: Wood
  • Patio And Porch Features: Concrete, Deck, Rooftop
  • Road Frontage Type: City Street
  • View: City Lights

Measurements

  • Lot Features: Lawn, Rectangular Lot
  • Lot Size Acres: 0.07
  • Lot Size Area: 3,240
  • Lot Size Source: Assessor
  • Lot Size Square Feet: 3,240
  • Lot Size Units: Square Feet

Financial

Taxes

  • Parcel Number: 02510118

Interior

Features

  • Appliances: Dishwasher, Disposal
  • Fireplace Features: Bonus Room, Living Room
  • Fireplace: Yes
  • Flooring: Carpet, Tile, Wood
  • Interior Features: Separate/Formal Dining Room, Multiple Staircases

Measurements

  • Living Area: 2,406
  • Living Area Source: Assessor
  • Living Area Units: Square Feet

Rooms

  • Bathrooms Full: 2
  • Bathrooms Three Quarter: 1
  • Bathrooms Total Integer: 3
  • Bedrooms Total: 3
  • Main Level Bathrooms: 1

Other

Location

  • Subdivision Name: Downtown Area (DOWN)
  • Tax Block: 1204
  • Tax Lot: 17

Parking

Parking

  • Attached Garage: Yes
  • Garage Spaces: 2
  • Garage: Yes
  • Open Parking Spaces: 2
  • Parking Features: Driveway Level, Garage
  • Parking Total: 4

Schools

High School

  • High School: Huntington Beach
  • High School District: Huntington Beach Union High

Middle or Junior School

  • Middle Or Junior School: Dwyer

Utilities

Equipment

  • Electric: Electricity - On Property
  • Heating: Central, Forced Air
  • Has Heating: Yes
  • Laundry Features: In Kitchen, Stacked
  • Sewer: Public Sewer,Sewer Tap Paid
  • Utilities: Cable Connected, Electricity Connected, Natural Gas Connected, Phone Connected, Sewer Connected, Water Connected
  • Water Source: Public

Based on information from California Regional Multiple Listing Service, Inc. and/or other sources. All data, including all measurements and calculations of area, is obtained from various sources and has not been, and will not be, verified by Prevu or the MLS. Information is provided exclusively for consumer's personal, non-commercial use and may not be used for any purpose other than to identify prospective properties consumer may be interested in purchasing.

Full MLS Disclaimers

Rebate estimate is indicative only and based on listing price and estimated buyer's agent commission paid by owner, if applicable. Final rebates are subject to Terms of Use and may vary due to final negotiated transaction terms.