BuySellBlogBrowse Listings

11609 E Cedar AvenueAurora, CO 80012

For Sale

$300,000

Smart Buyer Rebate - Ask

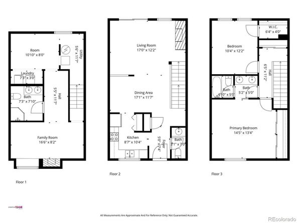
Explore this fantastic opportunity, whether you're seeking your first home or aiming to downsize or any buyer. This nicely updated townhouse with new paint and carpet with 2-bedroom, conveniently located near Aurora Hills Golf Course, offers seamless access to shopping, Lowry, and major highways for easy commuting within the metro area. Step into a clean kitchen with sleek stainless-steel appliances that will surely captivate your culinary senses. The main floor family room, complemented by a charming wood-burning fireplace, seamlessly connects to the generously sized dining room, creating a comfortable flow for both relaxation and entertainment. Nice and Unique to have your own outside space to grill out, have a pet and just enjoy the great Colorado weather. Upstairs, two well-appointed bedrooms await, providing cozy retreats. Additionally, the finished basement level offers versatility with a lot of hang out space, another fireplace, option to add a 3rd bedroom, additional storage space and a convenient Three Quarter-bath. The generously proportioned 2 car garage not only accommodates a vehicle but also offers the possibility of extra storage space. Embrace the community's amenities as you'll be mere steps away from the inviting clubhouse and refreshing pool, promising delightful moments on sun-soaked Colorado days. Don't hesitate—secure your viewing appointment today before this exceptional gem slips through your fingers!

Listed by Leo Rowen

·

License #026894

·

RE/MAX of Cherry Creek

·

303-521-0360

Last updated November 10, 2025

·

Source: REcolorado #3852542

Listing Facts

  • TypeSingle-family
  • NeighborhoodHighline Villages
  • Bedrooms2
  • Bathrooms3
  • Days on Prevu9
  • HOA/Maint. Fees$545/month
  • Taxes$996/year
  • Size1,728 sqft
  • Price per sqft$174

Amenities

  • Dishwasher
  • Private Outdoor Space
  • Washer/Dryer
  • Air Conditioning
  • Parking
  • Swimming Pool

Location

Mortgage Calculator

Listing History

11/10/2025
Listed by RE/MAX of Cherry Creek
$300,000

Property Details for 11609 E Cedar Avenue

Association

Amenities

  • Association Amenities: Pool

Fees

  • Association Fee: $545.00 Monthly
  • Association Fee Includes: Maintenance Grounds, Maintenance Structure, Sewer, Snow Removal, Trash, Water

General

  • Association Name: M & M Property Management

Exterior

Construction

  • Property Attached: Yes
  • Roof: Composition
  • Structure Type: Townhouse
  • Year Built: 1979
  • Common Walls: 2+ Common Walls
  • Construction Materials: Frame

Features

  • Direction Faces: South
  • Patio And Porch Features: Patio

Measurements

  • Building Area Total: 1,728
  • Lot Size Acres: 0.03
  • Lot Size Area: 1,133
  • Lot Size Square Feet: 1,133
  • Lot Size Units: Square Feet

Financial

Taxes

  • Parcel Number: 031127726
  • Tax Annual Amount: $996.00
  • Tax Year: 2024

Interior

Features

  • Appliances: Dishwasher, Dryer, Microwave, Range, Refrigerator, Washer
  • Fireplaces Total: 2
  • Flooring: Carpet, Wood

Measurements

  • Living Area: 1,728

Rooms

  • Basement: Full
  • Has Basement: Yes
  • Bathrooms Full: 1
  • Bathrooms Half: 1
  • Bathrooms Three Quarter: 1
  • Bathrooms Total Integer: 3
  • Bedrooms Total: 2
  • Main Level Bathrooms: 1

Other

Location

  • Subdivision Name: Roundtree

Parking

Parking

  • Attached Garage: Yes
  • Garage Spaces: 2
  • Parking Total: 2

Schools

Elementary School

  • Elementary School: Lansing
  • Elementary School District: Adams-Arapahoe 28J

High School

  • High School: Aurora Central
  • High School District: Adams-Arapahoe 28J

Middle or Junior School

  • Middle Or Junior School: South
  • Middle Or Junior School District: Adams-Arapahoe 28J

Utilities

Equipment

  • Cooling: Central Air
  • Heating: Forced Air
  • Laundry Features: In Unit
  • Sewer: Public Sewer
  • Water Source: Public

The content relating to real estate for sale in this Web site comes in part from the Internet Data eXchange ("IDX") program of METROLIST, INC., DBA RECOLORADO® Real estate listings held by brokers other than Prevu are marked with the IDX Logo. This information is being provided for the consumers' personal, non-commercial use and may not be used for any other purpose. All information subject to change and should be independently verified.

Full MLS Disclaimers

Rebate estimate is indicative only and based on listing price and estimated buyer's agent commission paid by owner, if applicable. Final rebates are subject to Terms of Use and may vary due to final negotiated transaction terms.